Einfamilien-Wohnhaus B. mit Doppelgarage und Ferienwohnung
Nahverdichtung mit Feingefühl – ein neues Zuhause im Ortskern
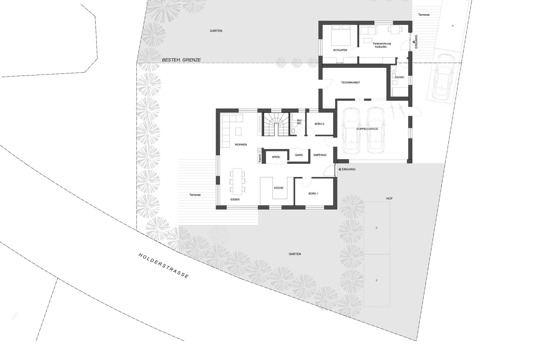
Die behutsame Nahverdichtung bestehender Ortskerne ist nicht nur städtebaulich erwünscht, sondern auch eine besonders reizvolle Aufgabe. In diesem Fall wurde ein großzügiger Garten zu einem wertvollen Baugrundstück umgewandelt und wird durften dort ein Einfamilienhaus mit Doppelgarage und integrierter Ferienwohnung schlüsselfertig Anfang 2025 realisieren.
Die Ferienwohnung wurde geschickt hinter der Doppelgarage platziert, wodurch eine klare Trennung zwischen privaten und vermietbaren Bereichen entsteht. Die Garage bietet zudem einen direkten Zugang zum privaten Wohnhaus – praktisch und komfortabel zugleich. Zusätzlich befindet sich an der Garage ein Technikraum, der dank des Verzichts auf eine Unterkellerung optimal genutzt wurde. Ein großzügiger Stauraum entstand stattdessen unter dem Walmdach.
Im Inneren überzeugt das Haus mit hochwertigen Details: Fischgrätparkett, eine mit Holz belegte Treppe und individuell gestaltete Bäder verleihen dem Gebäude eine warme und modernen Ausstrahlung. Ein Sitzfenster im Essbereich schafft einen gemütlichen Rückzugsort mit Blick ins Gründe. Die Besenstrichputz-Fassade verleiht dem Ganzen eine edle Note.
Bauort
EBERSTADT | 2024


