Einfamilien-Wohnhaus B. mit Doppelgarage
Modernes Einfamilienhaus mit Keller und Doppelgarage
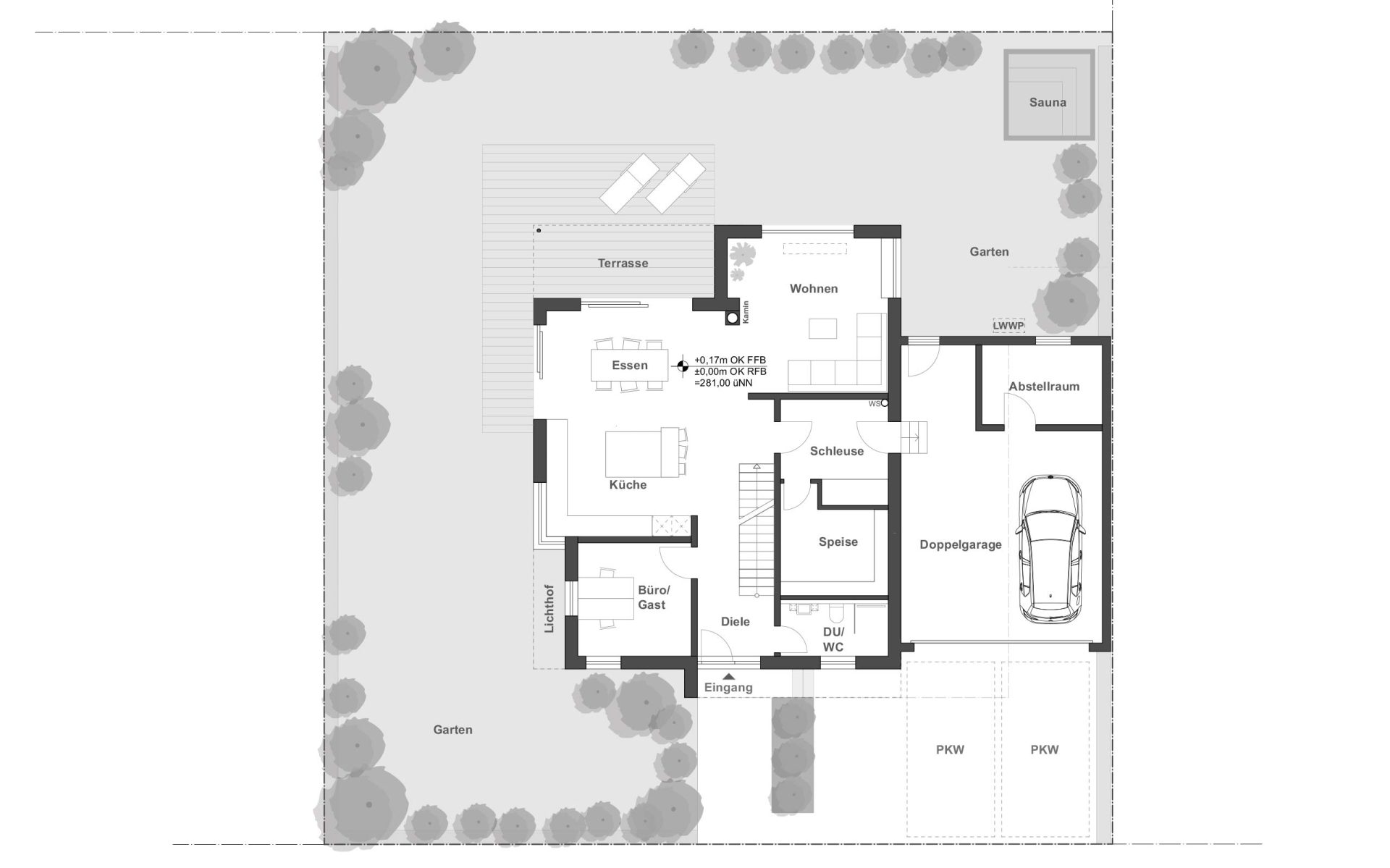
Dieses großzügige Einfamilienhaus wurde von uns geplant und realisiert und überzeugt durch seine klare, moderne Architektur und eine konsequente Farbgestaltung. Die Kombination aus Weiß und Grau zieht sich harmonisch von Dach mit der Kaminverwahrung bis ins Innere des Hauses.
Die Hanglage des Grundstückes erforderte eine durchdachte Lösung: Die Doppelgarage wurde um rund 60cm versetzt, um die Einfahrtshöhe zu optimieren und gleichzeitig einen ebenerdigen Zugang zum Hauseingang zu gewährleisten. Über die Garage und eine Schleuse gelangt man direkt in den Wohnbereich – komfortabel und praktisch zugleich. Dank der Hanglage verfügen auch die Kellerräume über Tageslicht, was für eine helle und freundliche Atmosphäre sorgt
Ein besonderes Highlight, dass uns im Gedächtnis bleibt, ist das individuell angefertigte Treppengeländer, das sich elegant durch alle Geschosse zieht – ein echtes Unikat, das unserem Stahlbauer große Freude bereitet hat.
Bauort
MÖCKMÜHL | 2023

